A school in Versailles

Massive stone & wood for a public school

winner – selective competition - ongoing

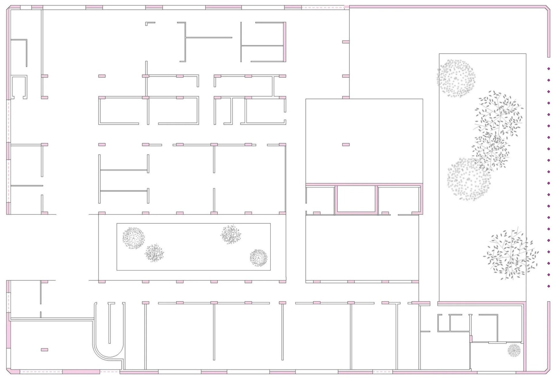
Location | Versailles (78) France • Client | Versailles municipality • Construction period | 2025- • Surface area | 3796 m² • Program | public school • Cost |   €

Building in Versailles is a glorious fantasy. The project therefore proposes to address the theme of contemporain ornamentation derived from the use of natural materials.

However, there is no nostalgia. On the contrary, the rationalist vision of the implementation is a pretext for exploring new forms of architectural expression. The mitred arches and corner columns are conducive to defining a project that is at once simple, graceful and lively, reflecting this school project.

Précédent
Précédent

4 Stone building

Suivant
Suivant

Place & Grenette